環亞物業拍賣有限公司 AA Property Auctioneers Ltd.
 
 
  物業拍賣 公司簡介 精選樓盤 買家須知 委託拍賣詳情 拍賣條款 聯絡我們  
    九龍塘 昌邦閣 2A 更新日期 : 2025-10-15
返回
 
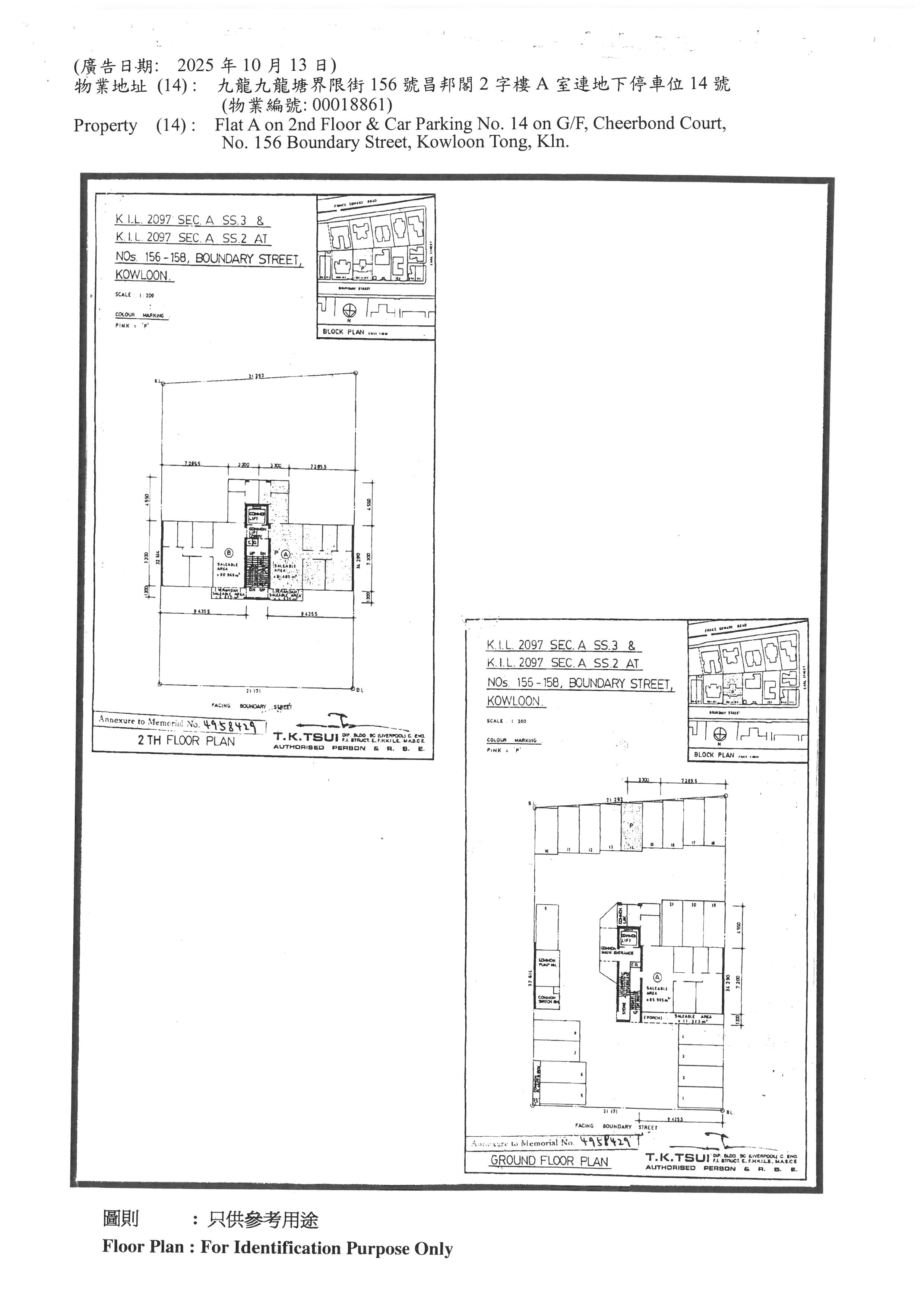
九龍九龍塘界限街156號昌邦閣2字樓A室連地下停車位14號 (物業編號: 00018861)
Flat A on 2nd Floor & Car Parking No. 14 on G/F, Cheerbond Court, No. 156 Boundary Street, Kowloon Tong, Kln.
用途
: 住宅
入伙年份(約)
: 1991 年
建築面積(約)
:
地段面積(約)
:
實用面積(約)
: 920
估價
: 0 萬港元
差餉及地租
: 0 港元
管理費
: 0 港元
景觀
:
狀況
: 交吉
睇樓時段
: 16/10(5-6)
18/10(2-4)
睡房
: 沒有
客飯廳
: 沒有
套房
: 沒有
工人房
: 沒有
儲物室
: 沒有
廚房/茶水間
: 沒有
浴室/廁所
: 沒有
裝修
:
連車位
:

    開價:港幣980萬
物業資訊聆 物業位置圖 物業平面圖
土地查冊資訊可聯絡相關銷售員

聯絡人 : 9132 1651 劉先生
9222 5212 孫小姐

 
環亞物業拍賣 2003 - 2024 年版權所有不得轉載

本網頁提供的物業資料只供參考之用,雖然本公司已盡力小心提供上述資料準確無誤,但本公司不會就本網頁所提供物業資料的任何錯誤、遺漏、失實陳述承擔任何保證及責任,本公司在任何情況下,都不須對因直接或間接使用或不能使用本網站提供的物業資料而引致任何損失或損毀負上法律責任或任何賠償。任何人仕必須明白及自行查證方作出競投、投買或購買,並於競投、投買或購買前由專業人仕(包括但並不謹限於律師、測量師及建築師等)獲取專業意見。