環亞物業拍賣有限公司 AA Property Auctioneers Ltd.
 
 
  物業拍賣 公司簡介 精選樓盤 買家須知 委託拍賣詳情 拍賣條款 聯絡我們  
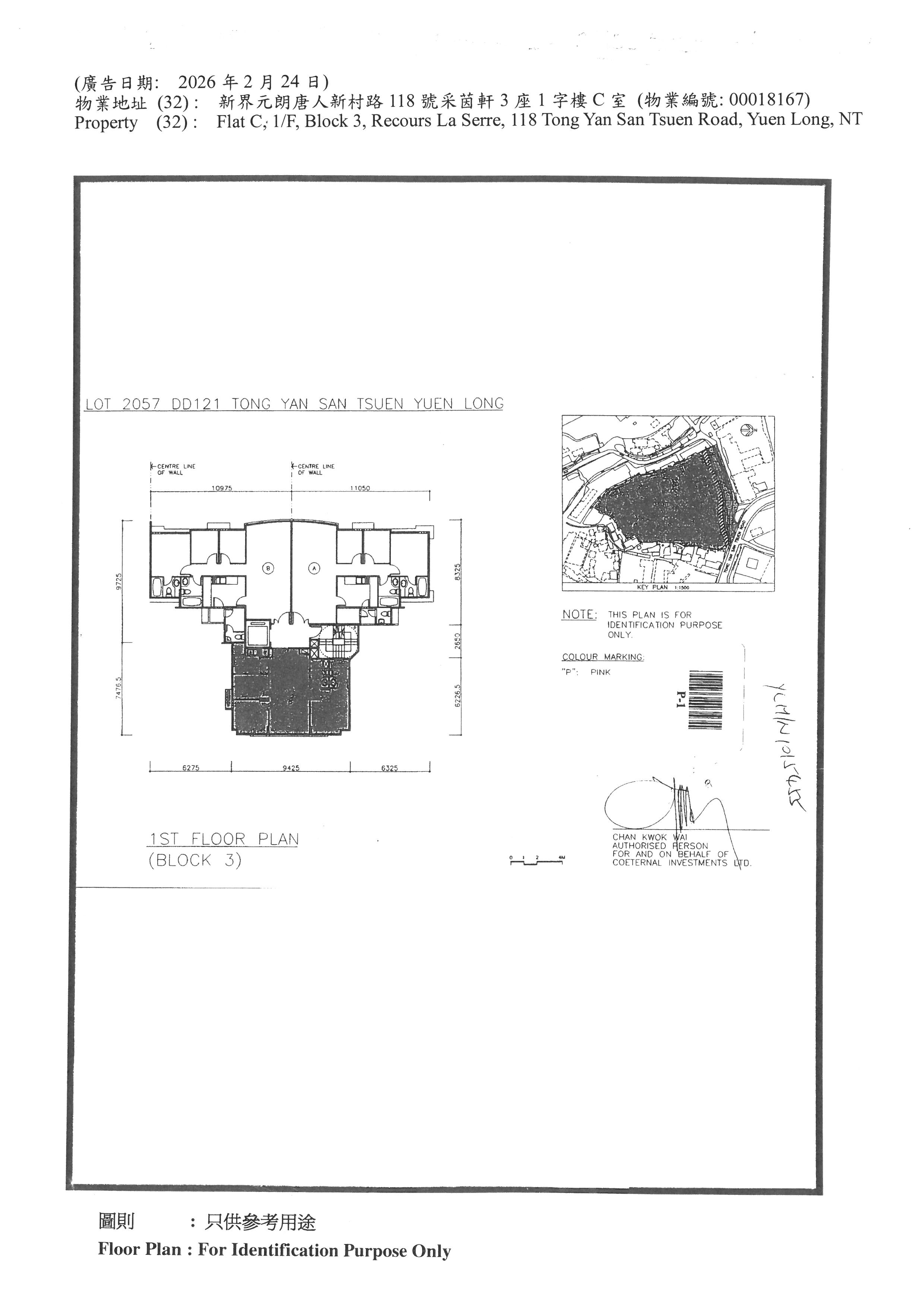
    元朗 采茵軒 3座 1樓 C室 更新日期 : 2026-03-02
返回
 
新界元朗唐人新村路118號采茵軒3座1字樓C室 (物業編號: 00018167)
Flat C, 1/F, Block 3, Recours La Serre, No. 118 Tong Yan San Tsuen Road, Yuen Long, NT
用途
: 住宅
入伙年份(約)
: 2002 年
建築面積(約)
:
地段面積(約)
:
實用面積(約)
: 686
估價
: 0 萬港元
差餉及地租
: 0 港元
管理費
: 0 港元
景觀
:
狀況
: 交吉
睇樓時段
: 歡迎查詢
睡房
: 沒有
客飯廳
: 沒有
套房
: 沒有
工人房
: 沒有
儲物室
: 沒有
廚房/茶水間
: 沒有
浴室/廁所
: 沒有
裝修
:
連車位
:

    開價:港幣430萬
物業資訊聆 物業位置圖 物業平面圖
土地查冊資訊可聯絡相關銷售員

聯絡人 : 6999 9469 陳先生
6844 7223 謝小姐

 
環亞物業拍賣 2003 - 2024 年版權所有不得轉載

本網頁提供的物業資料只供參考之用,雖然本公司已盡力小心提供上述資料準確無誤,但本公司不會就本網頁所提供物業資料的任何錯誤、遺漏、失實陳述承擔任何保證及責任,本公司在任何情況下,都不須對因直接或間接使用或不能使用本網站提供的物業資料而引致任何損失或損毀負上法律責任或任何賠償。任何人仕必須明白及自行查證方作出競投、投買或購買,並於競投、投買或購買前由專業人仕(包括但並不謹限於律師、測量師及建築師等)獲取專業意見。