環亞物業拍賣有限公司 AA Property Auctioneers Ltd.
 
 
  物業拍賣 公司簡介 精選樓盤 買家須知 委託拍賣詳情 拍賣條款 聯絡我們  
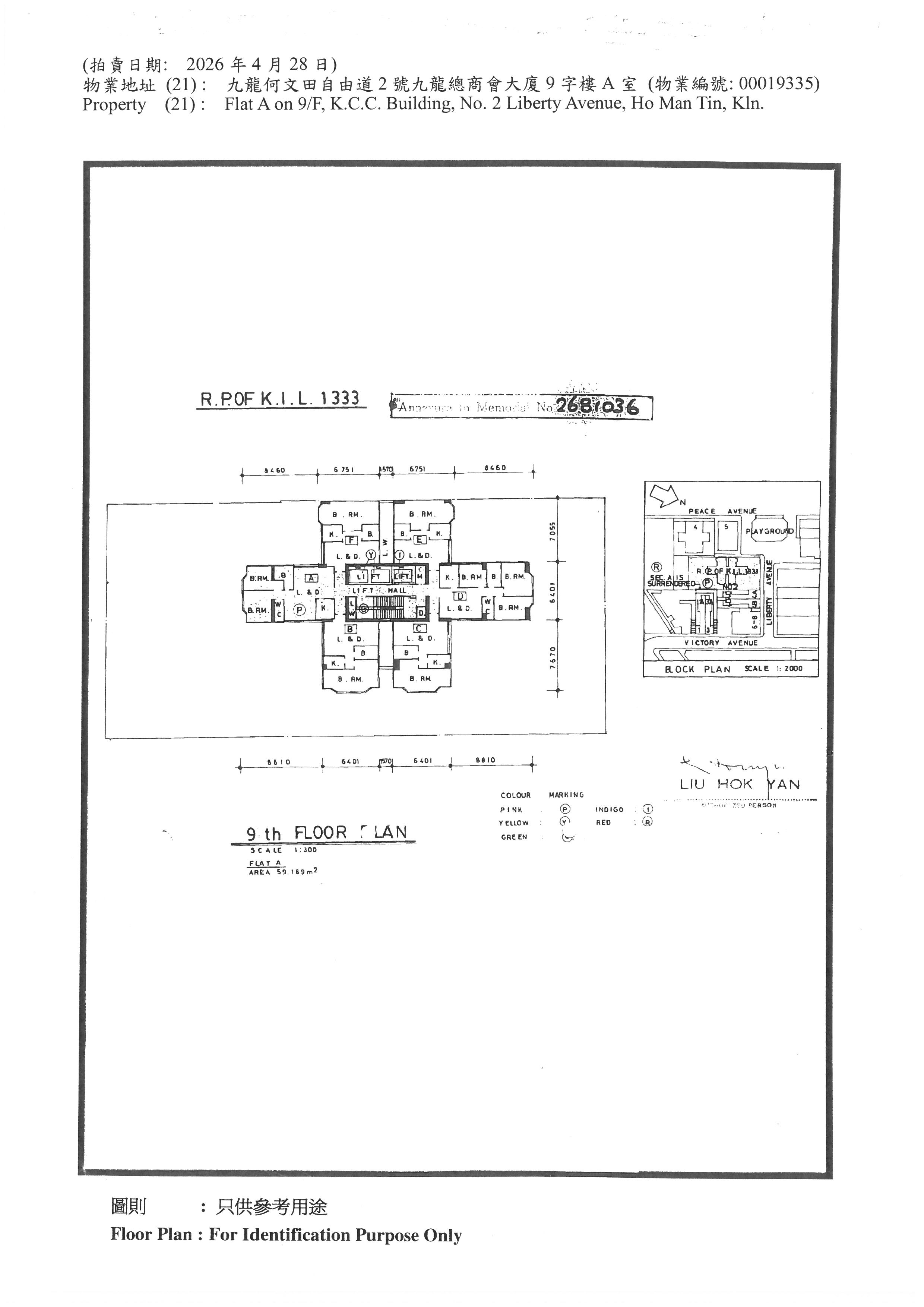
    何文田 九龍總商會大廈 9A 更新日期 : 2026-04-23
返回
 
九龍何文田自由道2號九龍總商會大廈9字樓A室 (物業編號: 00019335)
Flat A on 9/F, K.C.C. Building, No. 2 Liberty Avenue, Ho Man Tin, Kln.
用途
: 住宅
入伙年份(約)
: 1984 年
建築面積(約)
:
地段面積(約)
:
實用面積(約)
: 674
估價
: 0 萬港元
差餉及地租
: 0 港元
管理費
: 0 港元
景觀
:
狀況
: 交吉
睇樓時段
: 25/4(4-5)
睡房
: 沒有
客飯廳
: 沒有
套房
: 沒有
工人房
: 沒有
儲物室
: 沒有
廚房/茶水間
: 沒有
浴室/廁所
: 沒有
裝修
:
連車位
:

    開價:港幣680萬
物業資訊聆 物業位置圖 物業平面圖
土地查冊資訊可聯絡相關銷售員

聯絡人 : 9123 7786 黃小姐
6754 6753 朱先生

 
環亞物業拍賣 2003 - 2024 年版權所有不得轉載

本網頁提供的物業資料只供參考之用,雖然本公司已盡力小心提供上述資料準確無誤,但本公司不會就本網頁所提供物業資料的任何錯誤、遺漏、失實陳述承擔任何保證及責任,本公司在任何情況下,都不須對因直接或間接使用或不能使用本網站提供的物業資料而引致任何損失或損毀負上法律責任或任何賠償。任何人仕必須明白及自行查證方作出競投、投買或購買,並於競投、投買或購買前由專業人仕(包括但並不謹限於律師、測量師及建築師等)獲取專業意見。